Exkluzivně nabízíme pronájem krásného atypického bytu 2+KK v atraktivní lokalitě Plzeň Slovany, v těsné blízkosti bývalé papírny, nedaleko DEPO2015 či LogSpeed CZ Arény. Byt se nachází v II. patře architektonicky zajímavého cihlového domu, jehož výstavba byla dokončena v roce 2020.
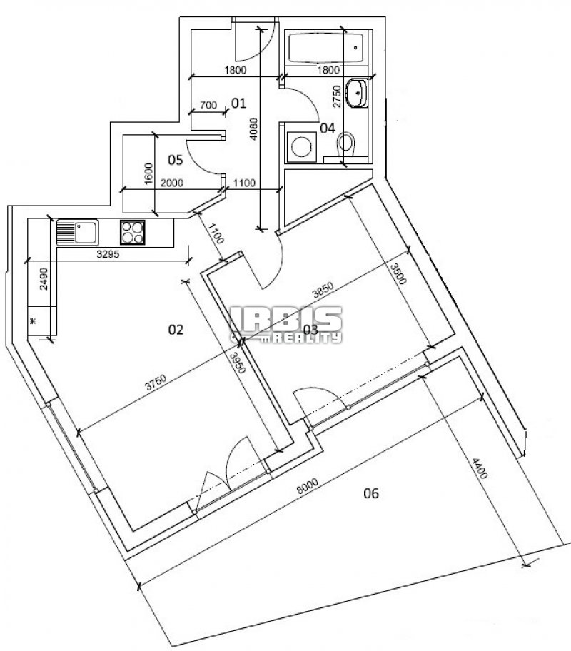
Vybavení bytu tvoří moderní kuchyňská linka s velkou digestoří (s odtahem do komína), elektrickou indukční deskou, elektrickou troubou, mikrovlnnou troubou a myčkou a samostatná velká lednice s mrazákem. Po dohodě lze vybavení doplnit o vestavěnou šatní skříň v ložnici. Součástí bytu je zděné jádro, koupelna s vanou a s nadstandardními obklady a také šatní komora. Podlahová krytina zahrnuje dlažbu a plovoucí podlahu. Nová výmalba je v bílém odstínu. Z kuchyně i ložnice lze vstoupit na prostornou (cca 25 m²) soukromou terasu se západním výhledem na řeku Radbuzu, centrum Plzně a stezku pro pěší a cyklisty. K bytu také náleží samostatná prostorná komora (sklep 5 m²) na chodbě hned vedle bytu a vyhrazené bezplatné kryté parkovací místo situované přímo v domě.
Tento teplý, středový byt vyniká zejména velmi nízkými náklady na vytápění (energetická třída B), nádherným výhledem a tichým okolím.
Pro příjem TV je k dispozici společná anténa s DVB-T2, dále je možné zapojení kabelové TV od O2 a připojení k internetu lze realizovat od O2 (200 Mb/s) nebo od místního poskytovatele.
Dům je kompletně bezbariérový, vybavený kamerovým systémem, domácím video telefonem, recepcí, café bistrem a dvěma osobními euro výtahy na podlaží. Dům disponuje také samostatnou společnou, volně přístupnou, terasou s výhledem na řeku Radbuzu a do zeleně.
V místě je veškerá občanská vybavenost (nedaleko domu supermarket BILLA, pekařství, restaurace, kavárna, lékárna a další) a velmi dobrá dostupnost MHD (tramvaj č. 1, 2 a trolejbus č. 12), včetně blízkosti hlavního vlakového a autobusového nádraží, jakož i centra města.
Měsíční nájemné ve výši 18 500 Kč, zálohy na energie činí cca 2 500 Kč měsíčně + elektřina dle spotřeby (převádí se na nájemce). Vratná kauce je ve výši 30 000 Kč + odměna RK.
Byt bude volný od 1.6.2026. Nájemní smlouva se uzavírá na jeden rok, s možností dalšího prodloužení. Pouze vážní a solventní zájemci. Pronajímatel si vyhrazuje právo vybrat nájemce na základě jím zvolených podmínek.
Jedinečná nabídka - vřele doporučujeme prohlídku!




























